|
双联切换过滤器(SSL型)
☆产品概述:
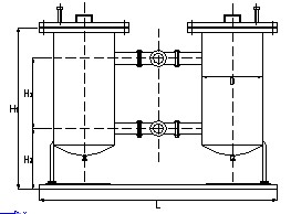
双联切换式过滤器又称并联切换过滤器,采用两个三通球阀,将两个单筒过滤器组装在一个机座上,清洗过滤器时不必停车,保证其连续工作,是不停车生产线过滤装置首选,我公司所生产双联切换式过滤器具有组装合理、结构优良、操作简便等优点。
☆适用范围:
本公司生产的过滤器具有结构紧凑、过滤能力大、压损小、适用范围广、维护方便、价格低廉等优点,其主要适用的物料有: 化工、石油化工生产中弱腐蚀性物料,如:水、油品、氨、烃类等。 化工生产中的腐蚀性物料,如:烧碱、纯碱、浓稀硫酸、碳酸、醛酸等。 制冷中的低温物料,如:液甲烷、液氨、液氧和各种冷剂。 食品、制药生产中有卫生要求的物料,如:啤酒、饮料、乳制品、糖浆等。

☆主要技术参数:
|
型号
Model |
SSL |
环境温度
Ambient Temperature |
CS:-30℃~+350℃
SS:-80℃~+480℃ |
|
规格
Size |
DN32~500 GB81~59
PN 0.6~5.0 FF RF |
螺帽螺栓
Bolt/Nut |
20# 304 304L 316 316L |
|
壳体材质
Body |
A3 304 304L 316 316L H62 衬里 |
连接方式
Jonit Type |
法兰连接 对焊连接 螺纹连接
Flange ButtWelding Threaded |
|
过滤精度
Pore size |
10~300(目/in) |
法兰标准
Flanges |
HG GB SH HGJ JB ANSI JIS |
|
密封垫片
Diaphragm(P/V) |
丁晴橡胶 聚四氟乙烯 金属垫片
NBR PTFE Metal Gasket |
设计检测标准
Manufacture Inspection |
GB150-98 HGJ532-91 |
|
滤芯材质
Element |
304 304L 316 316L |
外表Coating |
CS:Paint SS:No Paint |
☆规格尺寸:
|
DN |
D |
L |
L1 |
H1 |
H2 |
H3 |
|
50 |
273 |
1250 |
380 |
1200 |
460 |
550 |
|
65 |
325 |
1280 |
400 |
1200 |
475 |
550 |
|
80 |
377 |
1400 |
420 |
1440 |
515 |
660 |
|
100 |
425 |
1570 |
480 |
1480 |
540 |
690 |
|
150 |
520 |
1880 |
580 |
1780 |
610 |
900 |
|
200 |
566 |
2100 |
650 |
1880 |
680 |
900 |
☆订货须知:
产品名称、公称通径、压力等级、过滤精度、材质、法兰标准、操作压力等详细参数。以上产品尺寸为常规通用型,如需其他规格尺寸,欢迎来电来函。
|