|
篮式过滤器
☆产品概述:
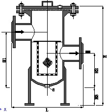
篮式过滤器主要由接管、筒体、滤篮、法兰、法兰盖及紧固件等组成。安装在管道上能除去流体中的较大固体杂质,使机器设备(包括压缩机、泵等)、仪表能正常工作和运转,达到稳定工艺过程,保障安全生产的作用。 工作原理: 当液体通过筒体进入滤篮后,固体杂质颗粒被阻挡在滤篮内,而洁净的流体通过滤篮、由过滤器出口排出。当需要清洗时,旋开主管底部螺塞,排净流体,拆卸法兰盖,清洗后重新装入即可。因此,使用维护极为方便。
☆适用范围:
本公司生产的过滤器具有结构紧凑、过滤能力大、压损小、适用范围广、维护方便、价格低廉等优点,其主要适用的物料有: 化工、石油化工生产中弱腐蚀性物料,如:水、油品、氨、烃类等。 化工生产中的腐蚀性物料,如:烧碱、纯碱、浓稀硫酸、碳酸、醛酸等。 制冷中的低温物料,如:液甲烷、液氨、液氧和各种冷剂。 食品、制药生产中有卫生要求的物料,如:啤酒、饮料、乳制品、糖浆等。
1.直通平底篮式过滤器(SN1型) 2.直通弧底篮式过滤器(SN2型)
 
3.高低接管平底篮式过滤器(SG1型) 4.高低接管弧底篮式过滤器(SG2型)

☆主要技术参数:
|
型号
Model |
SN SG |
环境温度
Ambient Temperature |
CS:-30℃~+350℃
SS:-80℃~+480℃ |
|
规格
Size |
DN32~500 GB81~59
PN 0.6~5.0 FF RF |
螺帽螺栓
Bolt/Nut |
20# 304 304L 316 316L |
|
壳体材质
Body |
A3 304 304L 316 316L H62 衬里 |
连接方式
Jonit Type |
法兰连接 对焊连接 螺纹连接
Flange ButtWelding Threaded |
|
过滤精度
Pore size |
10~300(目/in) |
法兰标准
Flanges |
HG GB SH HGJ JB ANSI JIS |
|
密封垫片
Diaphragm(P/V) |
丁晴橡胶 聚四氟乙烯 金属垫片
NBR PTFE Metal Gasket |
设计检测标准
Manufacture Inspection |
GB150-98 HGJ532-91 |
|
滤芯材质
Element |
304 304L 316 316L |
外表Coating |
CS:Paint SS:No Paint |
☆规格尺寸:
|
公称直径 DN |
结构尺寸 |
|
L |
H |
H1 |
D |
|
25 |
180 |
260 |
160 |
Φ76 |
|
32 |
200 |
270 |
160 |
Φ76 |
|
40 |
260 |
300 |
170 |
Φ108 |
|
50 |
260 |
300 |
170 |
Φ108 |
|
65 |
330 |
360 |
210 |
Φ133 |
|
80 |
340 |
400 |
250 |
Φ159 |
|
100 |
400 |
470 |
300 |
Φ219 |
|
125 |
480 |
550 |
360 |
Φ273 |
|
150 |
500 |
630 |
420 |
Φ273 |
|
200 |
560 |
780 |
530 |
Φ325 |
|
250 |
660 |
930 |
640 |
Φ426 |
|
300 |
750 |
1200 |
840 |
Φ478 |
☆订货须知: 订货时请注明:产品名称、公称通径、压力等级、过滤精度、材质、法兰标准操作压力等详细参数。以上产品尺寸为常规通用型,如需其他规格尺寸,敬请来电说明。 |